749 CARLETON STREET, KELOWNA, BC
LOT NUMBER: 2B-29
PRICING: $1,500,000 including GST. COMPLETION FINANCING AVAILABLE. CONTACT US FOR DETAILS.
POSSESSION DATE: 6 to 8 Months.
KEY FEATURES:
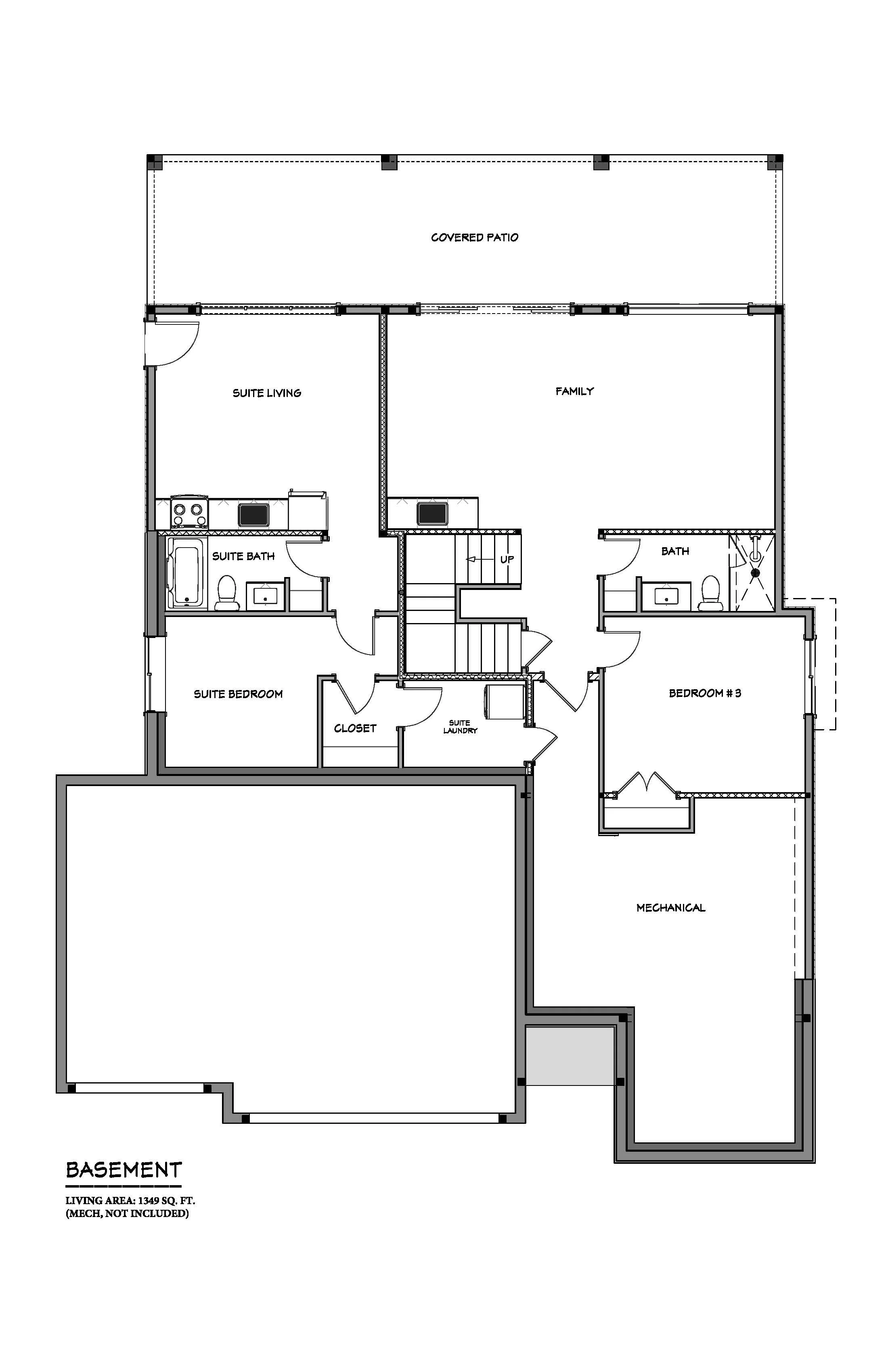
Beautiful Walkout Rancher being built in The ESTATES of University Heights.
5 Bedrooms, including a 1-bedroom mortgage helper suite in basement. (3 Bedrooms on Main, 2 Bedrooms in Basement)
4 full baths.
Stunning Valley View.
Covered Deck.
9’ Main Floor Ceiling.
9’ Basement Ceiling.
Attached Triple-Car Garage.
Quartz Countertops Throughout with Undermount Sinks.
Stylish Stainless-Steel Kitchen Appliances.
Concrete Covered Patio below Deck.
Napoleon Linear Electric Fireplace with Floor to Ceiling Tile Surround.
Exposed Aggregate Driveway and Sidewalk.
Exterior Finishing in Cement Board Lap Siding and Board and Batten, along with Cultured Stone.
Contact us at info@ovationhomes.ca or (778) 753-8402 for more details.
all renderings are for artistic depiction only.
all renderings are for artistic depiction only.
